WOHNEN ZWISCHEN WEINGARTEN UND

Lage: 2460 Bruck an der Leitha | Dr. Wilhelm Kramer-Straße 2
Titelbild
IMG_7285
IMG_7679
IMG_7672_1
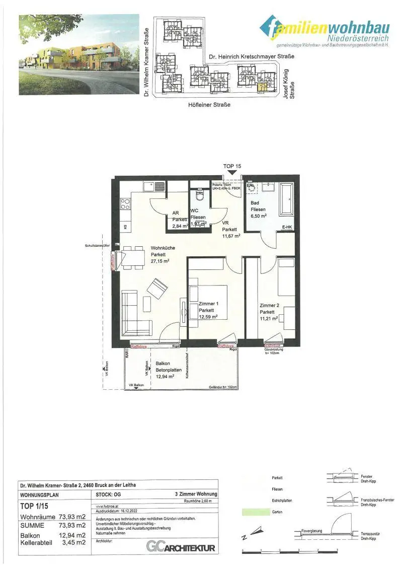
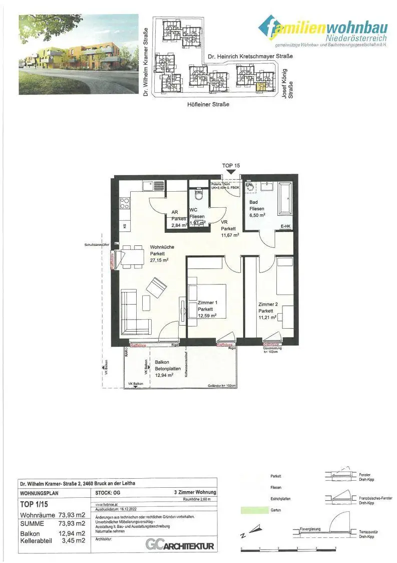
Objekt_6542_Grundriss_Top_1_15_im_OG

Downloads

Objekt_6542_Grundriss_Top_1_15_im_OG
Verkaufsplaene_UEbersichtsplaene_gesamt
Bau-und_Ausstattungsbeschreibung
Bemusterungsmappe_ELEKTRO

Beschreibung

WOHNEN ZWISCHEN WEINGARTEN UND STADTRAND


In der attraktiven Bezirkshauptstadt Bruck an der Leitha, zwischen ausgedehnten Weingärten und den Wäldern und Hügeln des Leithagebirges, hat die Familienwohnbau Niederösterreich in ruhiger Stadtrand-Lage eine neue Wohnhausanlage errichtet.


Details

Zur Wiedervermietung wird eine 3-ZI Wohnung im OG mit einer Nutzfläche von 79,93 m2 und einem Balkon von 12,94 m2 angeboten!


Der liebevoll gestaltete Gemeinschaftsbereich mit Kinderspielplatz soll für zusätzliche Wohnqualität sorgen. Neben der bequemen Parkmöglichkeit auf den vorgesehenen hauseigenen Abstellflächen werden zusätzlich großzügige Fahrradabstellräume geboten.
Sämtliche Fenster und Fenstertüren sind mit Außenjalousien.
Die Energie für Heizung und zentrales Warmwasser wird über einen Anschluss an das zentralen Fernwärmenetz sichergestellt. Zusätzlich kommt ein Kühlaggregat zum Einsatz. Die Wärme- und Kälteabgabe in den Wohnungen erfolgt über eine Deckenheizung bzw. -kühlung.
Eine Photovoltaikanlage am Dach rundet das Energiesystem ökologisch ab und versorgt die Allgemeinteile des Hauses.


Infrastruktur
Seine äußerst günstige Lage – nahe bei Wien und nur einen Katzensprung vom Neusiedler See entfernt – und das milde pannonische Klima der Gegend machen Bruck an der Leitha zum idealen Wohnort. Die moderne Kleinstadt mit historischem Stadtkern mit Fußgängerzone, zahlreichen Einkaufsmöglichkeiten und einem großen Angebot an Sport- und Freizeitaktivitäten, spielt auch eine wichtige Rolle als Schulstadt.
Die Bezirkshauptstadt ist neben der Anbindung an die A4, die Ostautobahn, auch Eisenbahn- und Busknotenpunkt. Die Park- & Ride-Anlage beim Bahnhof erleichtert die Entscheidung für Öffis – in nur 20 Minuten erreicht man den Hauptbahnhof in Wien.
Die Fahrzeit zum rund 19 km entfernten Flughafen Schwechat dauert circa 20 Minuten mit dem Auto.


Kosten:
Bruttomiete (inkl. BK und USt.): € 922,04
Finanzierungsbeitrag: € 12.559,98

BEZUG der Wohnung: 01.12.2025

Anmeldung ausschließlich per E-Mail an: walter@familienwohnbau.at

 

 

Fakten

Objektnummer:
3070/13808
Objekttyp:
Wohnung
Wohnfläche:
73,93 m²
Balkon:
1
Balkonfläche:
12,94 m²
Kellerfläche:
3,45 m²
Zimmer:
3
Schlafzimmer:
2
Badezimmer:
1
Toilette:
1
Heizung:
Deckenheizung, Fernwärme
Stiege:
1
Top-Nummer:
15
Stockwerk:
1
Neubau:
Ja

Preisdetails

Nettomiete:
838,22 €
Miete/m² netto:
11,34 €
Gesamtmiete:
922,04 €
Preisinfos:
BK inkl. Rücklage, Verwaltung
Provision:
provisionsfrei

Energieeffizienz

Energieausweisart:
Energiebedarfs­ausweis
HWB:
25,4 kWh/(m²*a)
HWB Klasse:
B

Theresia Walter
FAMILIENWOHNBAU gemeinnützige Bau- und Siedlungsges.m.b.H.
Ihr regionaler Experte.

walter@familienwohnbau.at
+43 1 / 403 41 81 - 57

Anfrage
Max. 500 Zeichen
Ich habe die Datenschutzvereinbarung gelesen und verstanden, und ich stimme der Verarbeitung meiner persönlichen Daten wie darin beschrieben zu. *