Geräumige 4 Zimmerwohnung in Stadlau im 3. OG

Lage: 1220 Wien | Schickgasse 32
Titelbild
IMG_3485
IMG_3480
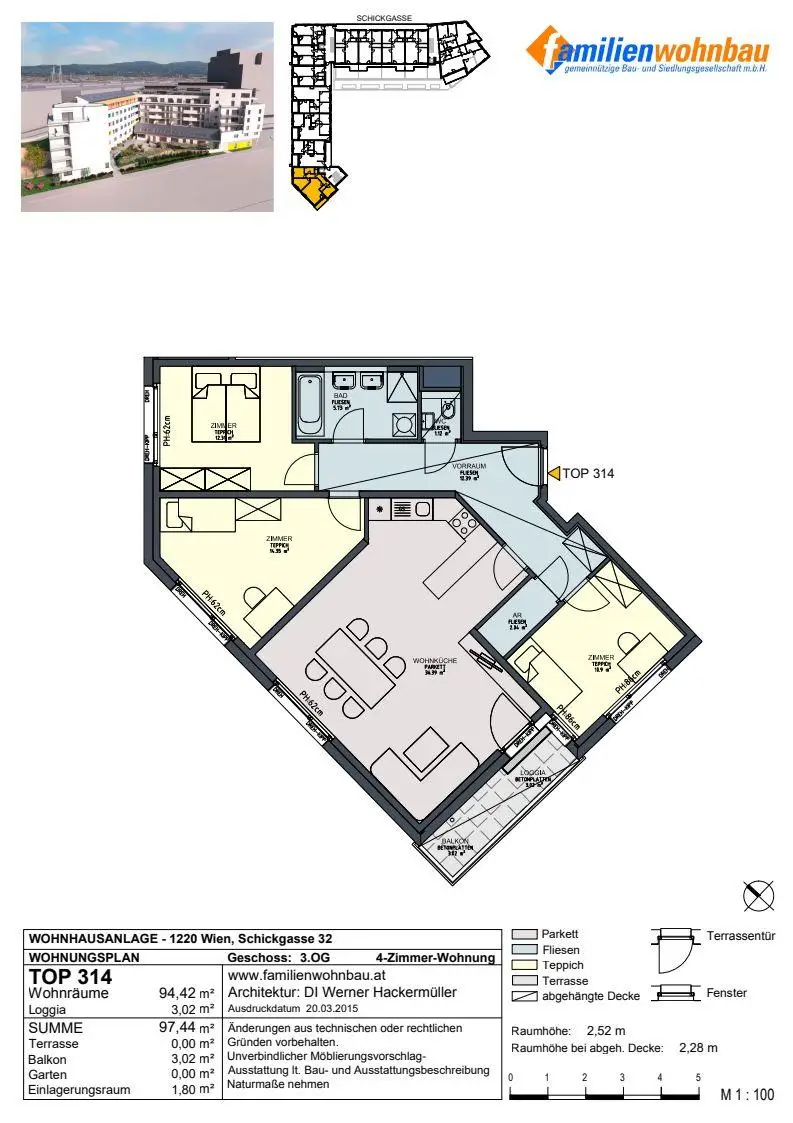
Grundriss 314
IMG_3479
IMG_5637
IMG_5641
IMG_5642
IMG_5643

Downloads

Grundriss 314

Beschreibung

geräumige, helle 4 Zimmerwohnung

Die Familienwohnbau hat in hervorragender Lage - in unmittelbarer Nähe zur U2-Station Hardeggasse - eine geförderte Wohnhausanlage mit 59 Mietwohnungen mit Kaufoption, Geschäftslokalen und Büroräumlichkeiten errichtet.

Dieses Projekt überzeugt vor allem durch seine energieeffiziente Planung - Niedrigenergiehaus Klasse A.

Aufgrund eines Rücktrittes können wir Ihnen diese 4 Zimmerwohnung im 1. Stock anbieten:

4 Zimmer mit ca. 97,40 m² inkl. ca. 3,02 m² Loggia zzgl. ca. 3,02 m² Balkon
Finanzierungsbeitrag: € 38.009,37
montl. Belastung: €966,97 (inkl. Betriebskosten, Verwaltung und USt.)

In der hauseigenen Tiefgarage können Parkplätze (ab € 80,-- / Monat) angemietet werden.

Allgemeinflächen im Objekt: Sozialraum, ein Kleinkinderspielplatz und ein Kinderwagen- und Fahrradabstellraum.

Stadlau ist begrenzt von den Stadtteilen Kagran, Aspern, Leopoldstadt und Kaisermühlen und punktet unter anderem durch regelmäßige Veranstaltungen wie Kirtag, Spielefest, Bauernmarkt, Ausstellungen, kulturelle Angebote und zahlreiche sportliche Möglichkeiten. Die nahe gelegenen Naturoasen Mühlwasser, Donauinsel oder z.B. das Strandbad Stadlau bieten eine Fülle von Freizeitaktivitäten für jedes Alter.
Die ausgezeichnete Infrastuktur aber auch ein dichtes Netz öffentlicher Verkehrsmittel sowie die Nähe zur A23 machen Stadlau zu einem boomenden Wohnbezirk mit hoher Lebensqualität.

Für die Küche ist über die Ablöse (ca. €2000,--) mit den derzeitigen Mietern zu sprechen. Die Küche hat ca. 4 m und ist von 2019.

Danke für Ihre Anmeldung per E-Mail unter walter@familienwohnbau.at!

Die Wohnung kann am Freitag, 10.04.2026 um 13:30 Uhr besichtigt werden.

Fakten

Objektnummer:
3070/13873
Objekttyp:
Wohnung
Wohnfläche:
97,4 m²
Balkon:
1
Balkonfläche:
3,02 m²
Loggia:
1
Loggiafläche:
3,02 m²
Kellerfläche:
1,8 m²
Zimmer:
4
Schlafzimmer:
3
Badezimmer:
1
Toilette:
1
Heizung:
Fußboden
Stiege:
3
Top-Nummer:
314
Stockwerk:
3
Baujahr:
2016
Neubau:
Ja

Preisdetails

Nettomiete:
879,06 €
Gesamtmiete:
1.170,87 €
Betriebskosten:
182,18 € inkl. USt.
Finanzierungsbeitrag:
38.009,37 €
Provision:
provisionsfrei

Energieeffizienz

Energieausweisart:
Energiebedarfs­ausweis
HWB:
9,57 kWh/(m²*a)

Theresia Walter
FAMILIENWOHNBAU gemeinnützige Bau- und Siedlungsges.m.b.H.
Ihr regionaler Experte.

walter@familienwohnbau.at
+43 1 / 403 41 81 - 57

Anfrage
Max. 500 Zeichen
Ich habe die Datenschutzvereinbarung gelesen und verstanden, und ich stimme der Verarbeitung meiner persönlichen Daten wie darin beschrieben zu. *