Geförderter Familienhit in Muggendorf

Lage: 2763 Muggendorf | Hauptstrasse 2
Muggendorf
20181106_Familienwohnbau_Muggendorf_2_klein_2_1
Schlafzimmer

Downloads

VKP_Top_5

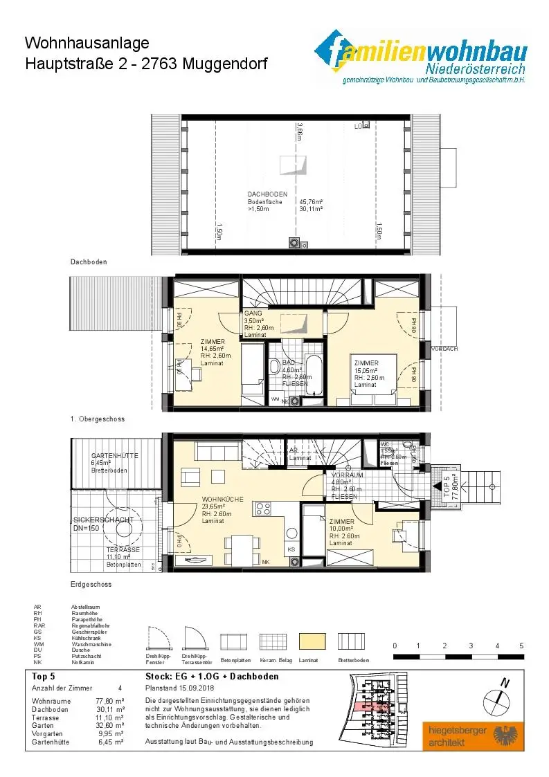
Beschreibung

Kosten:
Finanzierungsbeitzrag € 12.778,48
monatl. Kosten: € 981,99  (inkl. BK, Verwaltung, Heizung- und Warmwasser-Akonto sowie USt.)

Maisonette Wohnung mit Garten, Wohnfläche ca. 79m², Garten ca. 56m² und Terrasse ca. 11m²

Das Projekt
In der entzückenden Piestingtal-Gemeinde Muggendorf errichtet die Familienwohnbau Niederösterreich eine Wohnhausanlage
mit 8 geförderten Mietwohnungen samt dazugehörigen Auto-Abstellplätzen.


Die Details
Die 4-Zimmer-Wohnung ist als Maisonetten, also über zwei Etagen, ausgeführt und erwecken den Eindruck eines heimeligen Reihenhäuschens.

Die Wohnungen in der Anlage sind modern mit Laminatböden in den Wohnräumen und mit Feinsteinzeug in Sanitär- und Vorräumen ausgestattet. Eine zentrale Wärmepumpe versorgt sowohl die Fußboden-Heizung als auch die Warmwasseraufbereitung in den einzelnen Wohnungen. Der Strombedarf der Anlage wird teilweise durch die Photovoltaikanlage am Dach abgedeckt.

Die Infrastruktur
In Muggendorf gibt es eine Volks- und eine Mittelschule. Einkäufe erledigt man am besten im Nachbarort Pernitz. Für größere Shoppingvorhaben bietet sich Wiener Neustadt an. Die Entfernung nach Wien beträgt etwa 61 km.
In unmittelbarer Nähe zur Wohnhausanlage befindet sich die Wander- und Wasserwelt Myrafälle – ideal für Familienausflüge; unweit der Myrafälle, im Nachbarort Furth an der Triesting, gelangt man zur Steinwandklamm. Sie ist eine der schönsten, wildesten und interessantesten Karstklammen in Niederösterreich. Der Unterberg bietet ebenfalls ein herrliches Wandergebiet im Sommer und die Möglichkeit fürs Schifahren im Winter; zahlreiche Gasthäuser und Hütten runden das Angebot ab.

Bezug: ab 1.3.2026

Danke für Ihre Anmeldungen ausschließlich per E-Mail ildiko.ivancsics@familienwohnbau.at

Lagepläne

Plan 0

Fakten

Objektnummer:
3070/13858
Objekttyp:
Wohnung
Wohnfläche:
77,8 m²
Terrasse:
1
Terrassenfläche:
11,1 m²
Gartenfläche:
56,65 m²
Zimmer:
4
Schlafzimmer:
3
Badezimmer:
1
Toilette:
1
Top-Nummer:
7
Stockwerk:
Erdgeschoss
Neubau:
Ja

Preisdetails

Nettomiete:
892,72 €
Miete/m² netto:
11,47 €
Gesamtmiete:
981,99 €
Preisinfos:
Heizung- und Warmwasser-Akonto sind in den Kosten enthalten.
Finanzierungsbeitrag:
12.778,48 €
Provision:
provisionsfrei

Energieeffizienz

Energieausweisart:
Energiebedarfs­ausweis
HWB:
23,92 kWh/(m²*a)
fGEE:
0.74

Ildiko Ivancsics
FAMILIENWOHNBAU gemeinnützige Bau- und Siedlungsges.m.b.H.
Ihr regionaler Experte.

ildiko.ivancsics@familienwohnbau.at
+43 1 / 4034181 - 72

Anfrage
Max. 500 Zeichen
Ich habe die Datenschutzvereinbarung gelesen und verstanden, und ich stimme der Verarbeitung meiner persönlichen Daten wie darin beschrieben zu. *