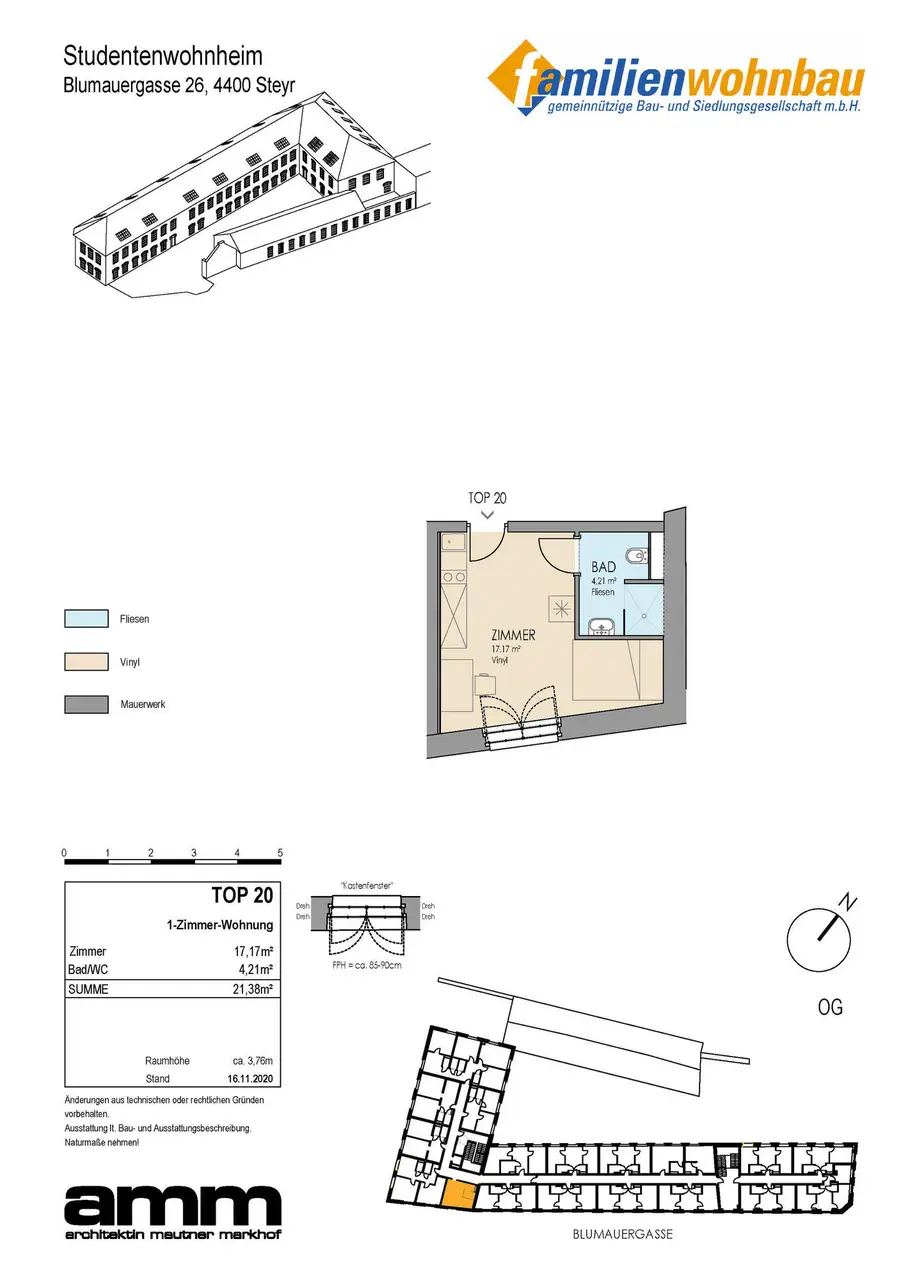
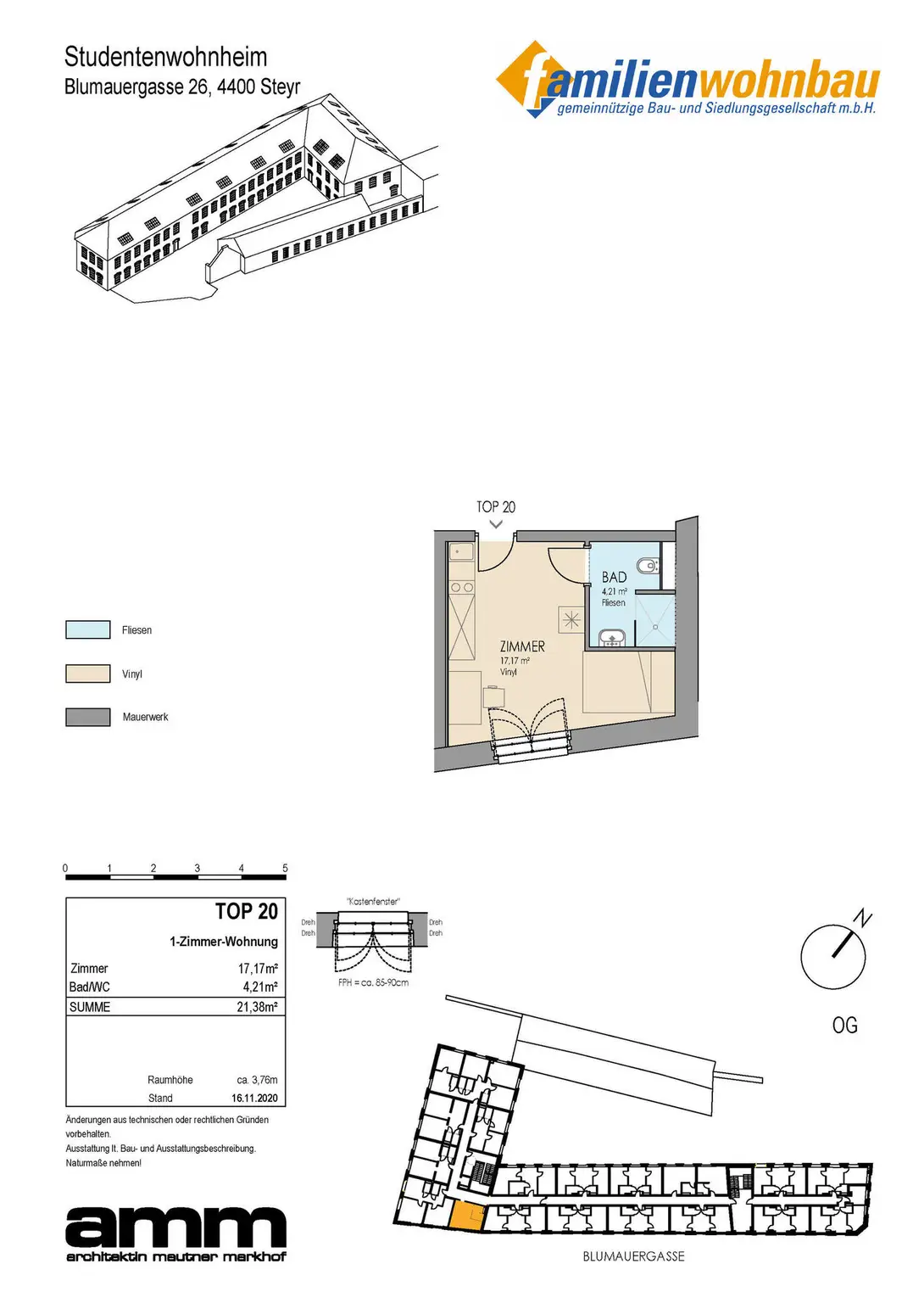
4400 Steyr, Blumauergasse 26 - Studentenwohnheim

20220825_120353_Top20
IMG_0288_Top_20
Vis_Stuwo_Steyr_WHG_Typ20_02
amm1104_StudentenwohnheimSteyr_Verkaufsplaene_Top20
20210924_094635_Ansicht_Baum
20210924_090347_Ansicht
Ansicht_Eingangstuer
_Z2A0949_Stiegenhaus_Eingang
20211124_105235_Kueche_Aufenthaltsraum
20211124_114205_Fernsehlounge

Downloads

Bau_Ausstattungsbeschreibung
Übersicht_EG
Übersicht_OG
Übersicht_DG

Beschreibung

MACH DIE FABRIK ZU DEINER HOMEBASE!

EINZELZIMMER ab sofort beziehbar!

Zimmer:

Einzelbett
Leselampe
Lattenrost
Matratze
Nachtboard
1 oder 2 Kleiderschränke mit je 2 Regalböden
Schreibtisch
Drehstuhl
Garderobenboard mit 4 Haken
Spiegel ca. 50 x 155 cm
Gegensprechanlage
Küchenzeile mit Ober- und Unterschränken: Cerankochfeld mit 2 Kochzonen, Mikrowelle mit Grillfunktion, Kühlschrank mit Gefrierkombination, Integrierte Arbeitsflächenbeleuchtung und Spüle mit darunterliegendem Müllauszug

BAD/WC:

Duscharmatur mit Schubstange verchromt
Spiegel in Fliesenebene
Etagere / Keramik unterhalb des Spiegels
Handtuchhaken
Toilettenpapierhalterung
WC-Bürstengarnitur

Großzügige Gemeinschaftsbereiche mit:

Foyer mit Gemeinschaftsküche und Barbereich
Gut ausgestatteter Fitnessraum
Freibereich im Atrium mit Tischtennis, Tischfußball
Lounge mit Sofa und Flatscreen im Dachgeschoss
Waschküche
Fahrradraum
Stellplätze im freien können zusätzlich angemietet werden
GRATIS WLAN

 

DEIN RÜCKZUGSORT im Einzelzimmer!

Du willst auf eigenen Beinen stehen?
Du studierst und suchst nach einer richtig coolen Bleibe?

Egal ob Du Dich für ein WG-Zimmer oder eine Garconiere entscheidest - jedes Zimmer ist möbliert und deckt mit Schreibtisch, Schreibtischsessel, Bett oder Hochbett und genügend Stauraum alle Bedürfnisse ab. Außerdem ist jede Wohneinheit mit einer eigenen Küche ausgestattet.

Du möchtest Deine eigenen 4 Wände haben aber dennoch nicht ganz alleine wohnen?

Gerade wenn wichtige Prüfungen anstehen, brauchst du Ruhe und Zeit für Dich, wo Du dich in Deinem Zimmer zurückziehen kannst!
Nach Prüfungswochen kannst Du dann gemeinsam mit Deinen Freunden aus der WG in der Lounge vor dem Flatscreen chillen, die Tischfussballrunde im Freien genießen oder dich im Fitnessraum auspowern.


Bei Interesse ruf uns einfach an und informiere dich. Wir freuen uns auf deinen Anruf!

 

 

 

 

Fakten

Objektnummer:
3070/13831
Objekttyp:
Wohnung
Wohnfläche:
21,38 m²
Zimmer:
1
Top-Nummer:
20
Stockwerk:
1
Neubau:
Ja
Verfügbar ab:
Kurzfristig

Preisdetails

Nettomiete:
610,91 €
Miete/m² netto:
28,57 €
Gesamtmiete:
672,00 €
Preisinfos:
inkl. Pauschale für Strom, Wasser und Heizung
Provision:
provisionsfrei
Kaution:
2.015,00 €

Energieeffizienz

Energieausweisart:
Energiebedarfs­ausweis
HWB:
31,7 kWh/(m²*a)
HWB Klasse:
B
fGEE:
0.64
fGEE: Klasse
A+

Sabrina Ecker
FAMILIENWOHNBAU gemeinnützige Bau- und Siedlungsges.m.b.H.
Ihr regionaler Experte.

ecker@familienwohnbau.at
+43 1 / 4034181 - 14

Anfrage
Max. 500 Zeichen
Ich habe die Datenschutzvereinbarung gelesen und verstanden, und ich stimme der Verarbeitung meiner persönlichen Daten wie darin beschrieben zu. *