4400 Steyr, Blumauergasse 26 - Studentenwohnheim

_Z2A0892farbe_Ansicht_Innenhof
_Z2A0878_Ansicht_vonoben
_Z2A0925_Kueche_Essbereich_WG
20211124_113654_Stiegenhaus
20211124_114205_Fernsehlounge

Downloads

Bau_Ausstattungsbeschreibung
Übersicht_EG
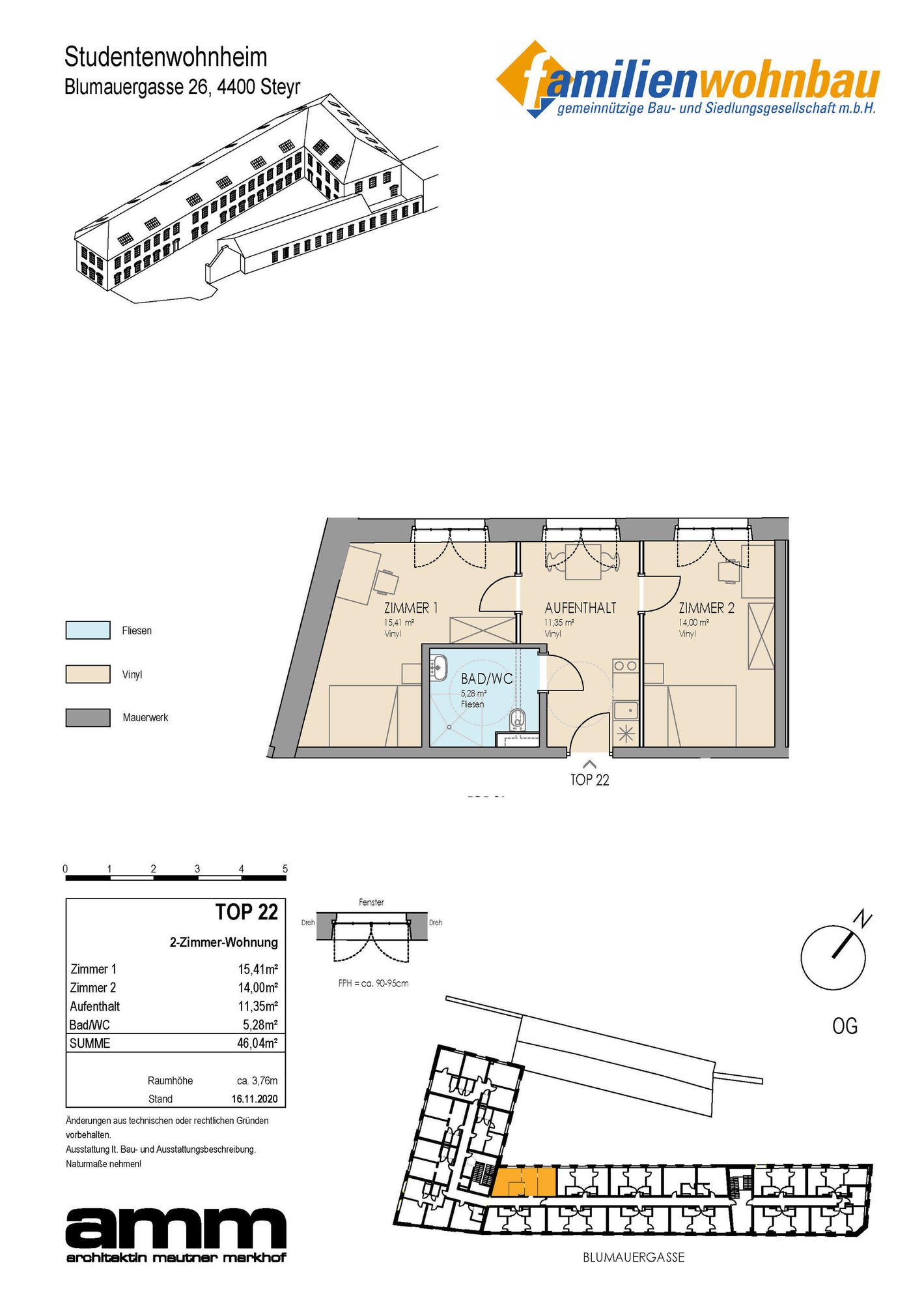
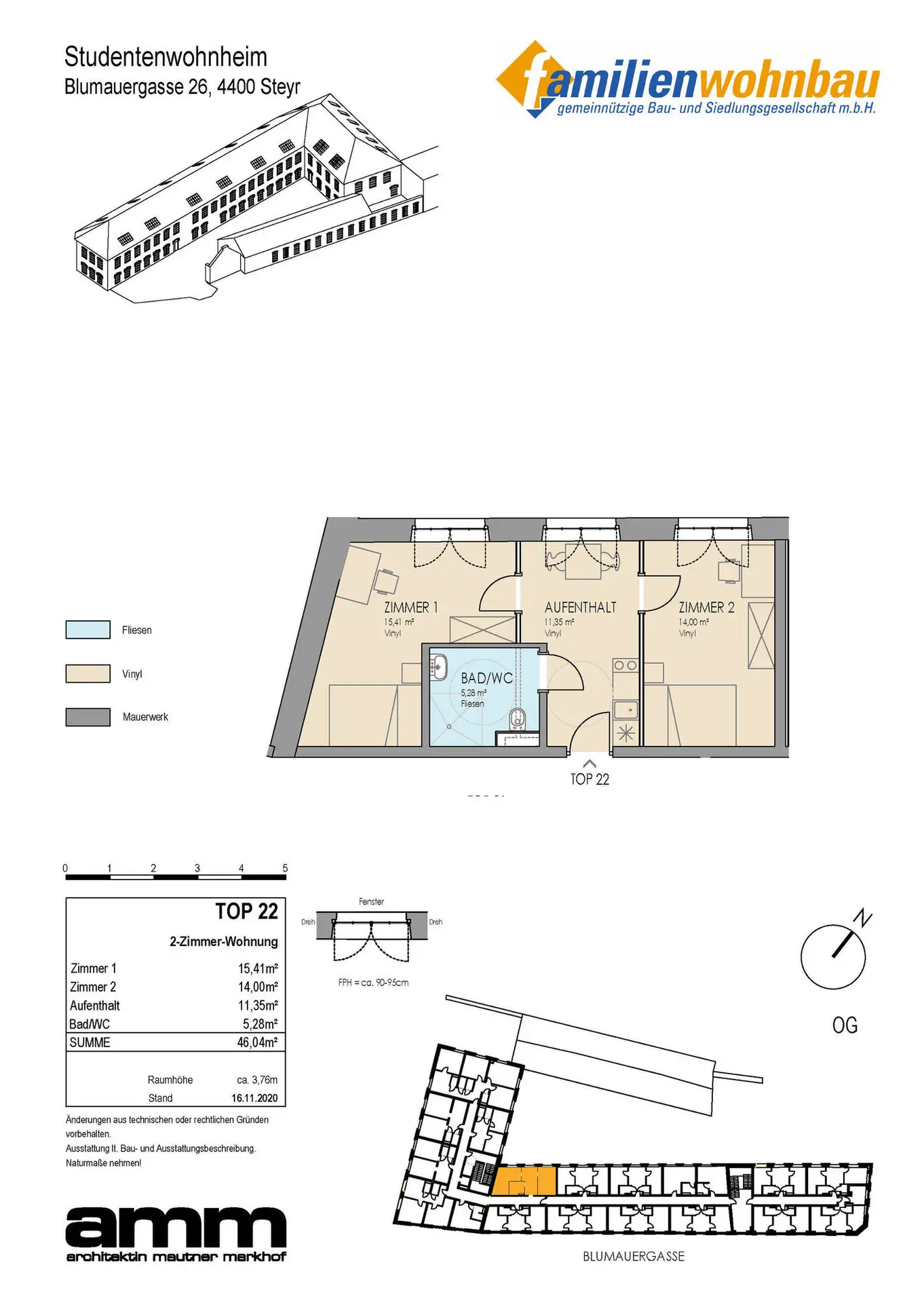
Übersicht_OG
Übersicht_DG

Beschreibung

 MACH DIE FABRIK ZU DEINER HOMEBASE!

kurzfristig beziehbar


Zimmer:

Einzelbett
Leselampe
Lattenrost
Matratze
Nachtboard
1 oder 2 Kleiderschränke mit je 2 Regalböden
Schreibtisch
Drehstuhl

Aufenthaltsraum:

1 Esstisch
zwei Sessel
Garderobenboard mit 4 Haken
Spiegel ca. 50 x 155 cm
Gegensprechanlage
Küchenzeile mit Ober- und Unterschränken: Cerankochfeld mit 2 Kochzonen, Mikrowelle mit Grillfunktion, Kühlschrank mit Gefrierkombination, Integrierte Arbeitsflächenbeleuchtung und Spüle mit darunterliegendem Müllauszug

BAD:

Duscharmatur mit Schubstange verchromt
Spiegel in Fliesenebene
Etagere / Keramik unterhalb des Spiegels
Handtuchhaken

WC:

Toilettenpapierhalterung
WC-Bürstengarnitur

Großzügige Gemeinschaftsbereiche mit:

Foyer mit Gemeinschaftsküche und Barbereich
Gut ausgestatteter Fitnessraum
Freibereich im Atrium mit Tischtennis, Tischfußball
Lounge mit Sofa und Flatscreen im Dachgeschoss
Waschküche
Fahrradraum
Stellplätze im freien können zusätzlich angemietet werden
GRATIS WLAN

 

DEIN RÜCKZUGSORT

Du willst auf eigenen Beinen stehen?
Du studierst und suchst nach einer richtig coolen Bleibe?

Egal ob Du Dich für ein WG-Zimmer oder eine Garconniere entscheidest - jedes Zimmer ist möbliert und deckt mit Schreibtisch, Schreibtischsessel, Bett oder Hochbett und genügend Stauraum alle Bedürfnisse ab. Außerdem ist jede Wohneinheit mit einer eigenen Küche ausgestattet.

Du möchtest Deine eigenen 4 Wände haben aber dennoch nicht ganz alleine wohnen?

Gerade wenn wichtige Prüfungen anstehen, brauchst du Ruhe und Zeit für Dich, wo Du dich in Deinem Zimmer zurückziehen kannst!
Nach Prüfungswochen kannst Du dann gemeinsam mit Deinen Freunden aus der WG in der Lounge vor dem Flatscreen chillen, die Tischfussballrunde im Freien genießen oder dich im Fitnessraum auspowern.


Bei Interesse ruf uns einfach an und informiere dich. Wir freuen uns auf deinen Anruf!

 

 

Lagepläne

Plan 0

Fakten

Objektnummer:
3070/13834
Objekttyp:
Wohnung
Wohnfläche:
14 m²
Zimmer:
1
Top-Nummer:
22/2
Stockwerk:
1
Neubau:
Ja
Verfügbar ab:
Kurzfristig

Preisdetails

Nettomiete:
430,91 €
Miete/m² netto:
30,78 €
Gesamtmiete:
474,00 €
Preisinfos:
inkl. Pauschale für Strom, Wasser und Heizung
Provision:
provisionsfrei
Kaution:
1.423,00 €

Energieeffizienz

Energieausweisart:
Energiebedarfs­ausweis
HWB:
31,7 kWh/(m²*a)
HWB Klasse:
B
fGEE:
0.64
fGEE: Klasse
A+

Sabrina Ecker
FAMILIENWOHNBAU gemeinnützige Bau- und Siedlungsges.m.b.H.
Ihr regionaler Experte.

ecker@familienwohnbau.at
+43 1 / 4034181 - 14

Anfrage
Max. 500 Zeichen
Ich habe die Datenschutzvereinbarung gelesen und verstanden, und ich stimme der Verarbeitung meiner persönlichen Daten wie darin beschrieben zu. *