4400 Steyr, Blumauergasse 26 - Studentenwohnheim

20211124_112550_KUECHE_linksKuehlschrank
20211124_110454_rechtes_Zimmer
20211124_110504_rechtes_Zimmer
20211124_110535_Von_oben_runter_rechtes_Zimmer
20211124_110521_Matratze
20211124_110024_BAD
20211124_110109_WC
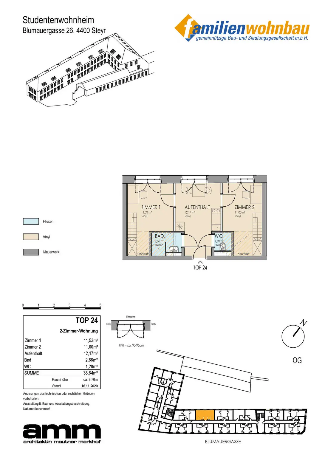
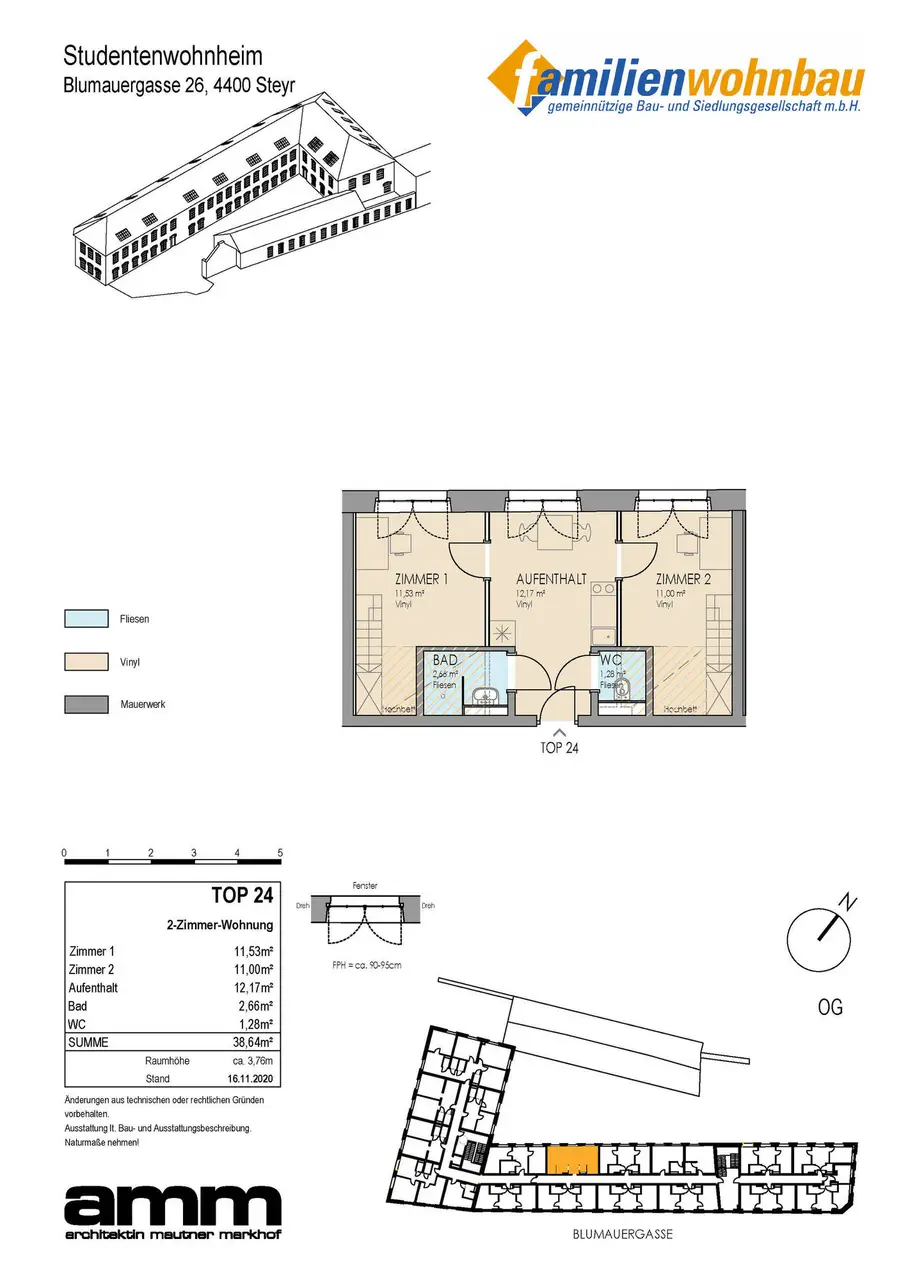
Grundriss_Top 24_Zi 2
Vis_Stuwo_Steyr_WHG_Typ1_01_preview_20201126
20210924_094635_Ansicht_Baum
10211124_113655_Stiegenhaus
20211124_105235_Kueche_Aufenthaltsraum
20220203_104258_Fitnessraum

Downloads

Bau_Ausstattungsbeschreibung
Übersicht_EG
Übersicht_OG
Übersicht_DG

Beschreibung

 MACH DIE FABRIK ZU DEINER HOMEBASE!

kurzfristig beziehbar!

Zimmer:

Hochbett mit Aufstiegsmöglichkeit
18 variable Regalböden im Aufstiegsmöbel
Leselampe am Hochbett
Lattenrost
Matratze
Nachtboard
1 oder 2 Kleiderschränke mit je 2 Regalböden
Schreibtisch
Drehstuhl

Aufenthaltsraum:

1 Esstisch
zwei Sessel
Garderobenboard mit 4 Haken
Spiegel ca. 50 x 155 cm
Gegensprechanlage
Küchenzeile mit Ober- und Unterschränken: Cerankochfeld mit 2 Kochzonen, Mikrowelle mit Grillfunktion, Kühlschrank mit Gefrierkombination, Integrierte Arbeitsflächenbeleuchtung und Spüle mit darunterliegendem Müllauszug

BAD:

Duscharmatur mit Schubstange verchromt
Spiegel in Fliesenebene
Etagere / Keramik unterhalb des Spiegels
Handtuchhaken

WC:

Toilettenpapierhalterung
WC-Bürstengarnitur

Großzügige Gemeinschaftsbereiche mit:

Foyer mit Gemeinschaftsküche und Barbereich
Gut ausgestatteter Fitnessraum
Freibereich im Atrium mit Tischtennis, Tischfußball
Lounge mit Sofa und Flatscreen im Dachgeschoss
Waschküche
Fahrradraum
Stellplätze im freien können zusätzlich angemietet werden
GRATIS WLAN

 

DEIN RÜCKZUGSORT

Du willst auf eigenen Beinen stehen?
Du studierst und suchst nach einer richtig coolen Bleibe?

Egal ob Du Dich für ein WG-Zimmer oder eine Garconiere entscheidest - jedes Zimmer ist möbliert und deckt mit Schreibtisch, Schreibtischsessel, Bett oder Hochbett und genügend Stauraum alle Bedürfnisse ab. Außerdem ist jede Wohneinheit mit einer eigenen Küche ausgestattet.

Du möchtest Deine eigenen 4 Wände haben aber dennoch nicht ganz alleine wohnen?

Gerade wenn wichtige Prüfungen anstehen, brauchst du Ruhe und Zeit für Dich, wo Du dich in Deinem Zimmer zurückziehen kannst!
Nach Prüfungswochen kannst Du dann gemeinsam mit Deinen Freunden aus der WG in der Lounge vor dem Flatscreen chillen, die Tischfussballrunde im Freien genießen oder dich im Fitnessraum auspowern.


Bei Interesse ruf uns einfach an und informiere dich. Wir freuen uns auf deinen Anruf!

 

 

Fakten

Objektnummer:
3070/13836
Objekttyp:
Wohnung
Wohnfläche:
11 m²
Zimmer:
1
Top-Nummer:
24/2
Stockwerk:
1
Neubau:
Ja
Verfügbar ab:
Kurzfristig

Preisdetails

Nettomiete:
430,91 €
Miete/m² netto:
39,17 €
Gesamtmiete:
474,00 €
Preisinfos:
inkl. Pauschale für Strom, Wasser und Heizung
Provision:
provisionsfrei
Kaution:
1.423,00 €

Energieeffizienz

Energieausweisart:
Energiebedarfs­ausweis
HWB:
31,7 kWh/(m²*a)
HWB Klasse:
B
fGEE:
0.64
fGEE: Klasse
A+

Sabrina Ecker
FAMILIENWOHNBAU gemeinnützige Bau- und Siedlungsges.m.b.H.
Ihr regionaler Experte.

ecker@familienwohnbau.at
+43 1 / 4034181 - 14

Anfrage
Max. 500 Zeichen
Ich habe die Datenschutzvereinbarung gelesen und verstanden, und ich stimme der Verarbeitung meiner persönlichen Daten wie darin beschrieben zu. *