 
                    
                 
                    
                 
                    
                 
                    
                 
                    
                 
                    
                 
                    
                 
                    
                 
                    
                 
                    
                 
                    
                 
                    
                 
                    
                 
                    
                 
                    
                 
                    
                 
                    
                 
                    
                 
                    
                 
                    
                 
                    
                 
                    
                 
                    
                PROVISIONSFREI
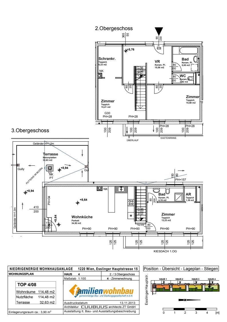
Zum Verkauf gelangt eine freifinanzierte 4 ZIMMER Maisonette Eigentums-WOHNUNG mit ca. 114 m² und ca. 33 m² sonniger Dachterrasse im 2. Obergeschoss und Dachgeschoss
HIGHLIGHTS:
RAUMAUFTEILUNG:
Eingangsebene ( 2. Obergeschoss):
Dachgeschoss:
Ein Garagenstellplatz kann ab € 22.000,00 dazu erworben werden.
  Nebenkosten:
- 3,5% Grunderwerbsteuer
- 1,1% Grundbucheintragung
- 2 % pauschal Vertragserrichtung
- € 600,-- pauschal für die Abfuhr der Grunderwerbsteuer und die Selbstberechnung an das Finanzamt sowie die Unterschriften der Verkäuferin am Kaufvertrag
- sowie div. Barauslagen
Das Projekt
Die Familienwohnbau hat im Jahr 2009 am Stadtrand von Wien, nahe den Marchfeldgemeinden, eine sympathische Wohnhausanlage mit 42 Wohnungen samt Tiefgarage errichtet. Die Lage – urban und dennoch nahe an der Natur – verspricht Wohlfühlqualität in Wiens größtem Bezirk!
Für alle, die das Besondere suchen, ist diese großzügige Maisonette-Wohnung mit 114 m² Wohnfläche und einer traumhaften 33 m² Dachterrasse genau das Richtige. Große Fensterfronten fluten die Räume mit Licht, während die durchdachte Raumaufteilung eine harmonische Verbindung zwischen Wohnen und Entspannen schafft. Auf Ihrer privaten Terrasse hoch über den Dächern Wiens genießen Sie entspannte Stunden unter freiem Himmel – perfekt für gesellige Abende oder einen erholsamen Start in den Tag.
Die Wohnhausanlage überzeugt nicht nur durch ihr modernes Design, sondern auch durch ihre erstklassige Lage. Hier vereinen sich urbanes Leben und natürliche Erholung in perfekter Balance:
Die Details
Die Wohnanlage besteht aus vier Stiegen mit jeweils zehn Wohnungen, verteilt auf Erdgeschoss, 1. und 2. Obergeschoss sowie ein Dachgeschoss. Jede Wohnung verfügt über ein eigenes Kellerabteil.
Im Erdgeschoss befindet sich ein Kinderwagen- und Fahrradabstellraum. Zusätzlich steht allen Bewohner:innen im Keller ein großzügiger Gemeinschaftsraum zur Verfügung, der mit Fitnessgeräten ausgestattet ist und sich auch ideal für Feiern, z. B. Geburtstage, eignet.
Beheizt wird die Anlage über eine effiziente Gas-Zentralheizung, die für angenehme Wärme in allen Wohnungen sorgt.
Die gesamte Anlage ist barrierefrei konzipiert. Alle Stiegen sind mit einem Lift ausgestattet, der sowohl die Wohnebenen als auch direkt den Keller mit der Tiefgarage verbindet – für maximalen Komfort und uneingeschränkte Mobilität.
Die Infrastruktur
Mit der Autobuslinie 26 A erreicht man bequem das Donau Zentrum in Kagran, von dort gelangt man mit der U1 direkt in die City. Mit den Buslinien 88 A+B kommt man in die Seestadt Aspern mit direktem Anschluss an die U2.
Ein Lebensmittelsupermarkt ist fußläufig in wenigen Minuten zu erreichen
Naturfreunde werden die Nähe zum weitläufigen Nationalpark Donau-Auen mit seinen Wanderwegen sehr zu schätzen wissen.
Ein hervorragend ausgebautes Radwegenetz macht die Donaustadt speziell für Radfahrer zum wahren Paradies. Naturoasen wie die Alte Donau, Donauinsel oder die Lobau haben für jeden etwas zu bieten. Ein beachtliches Angebot an Gastronomie und Freizeiteinrichtungen ermöglichen Urlaubsfeeling pur.
Der Zeitplan
Die Wohnung ist kurzfristig beziehbar.
Bei Interesse senden Sie uns bitte eine Anfrage per E-Mail.
 
                
                                    
                                                    hauk@familienwohnbau.at
                                                                            
+43 1 / 4034181 - 19