3 Zimmer Eigentum mit Terrasse Nähe Kagraner Platz

Lage: 1220 Wien | Attemsgasse 50
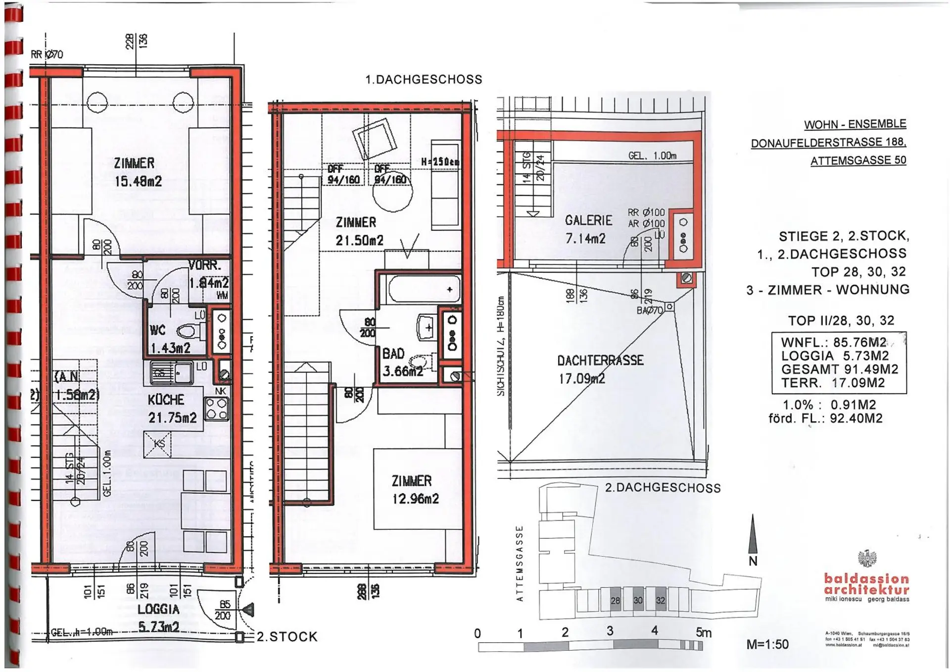
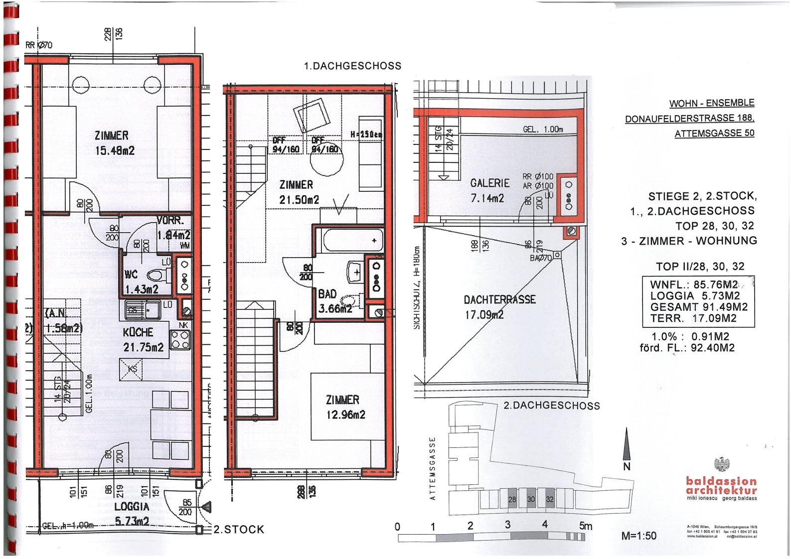
Grundriss_Do188_32_Eigentum_DB
IMG_7055
IMG_8779
IMG_8792
IMG_8781
IMG_8801
IMG_8805
IMG_8814
IMG_8818
IMG_8861
IMG_8855
IMG_8821
IMG_8833
IMG_8825
IMG_8811
IMG_8893
IMG_8870
IMG_8770
IMG_8883_heller
Fassade
2006_11_23_Ansicht_WHA_2
IMG_8847_heller

Beschreibung

PROVISIONSFREI - Zum Verkauf gelangt eine 3 ZIMMER Eigentums-WOHNUNG mit ca. 92 m² inkl. ca. 6 m² LOGGIA UND 17 m² Terrasse  im 2. OG!


RAUMAUFTEILUNG:

  • Vorraum
  • Küche mit Essplatz und Ausgang Loggia
  • Zimmer
  • WC

OBERGESCHOSS:

  • 2 Zimmer
  • Bad mit Badewanne, Waschbecken, WC und Waschmaschinenanschluss

GALERIE:

  • AUFGANG GALERIE
  • Ausgang Terrasse

Ein Garagenplatz kann um
Doppelparker unten € 14.000,00
Doppelparker oben : € 16.000,00
Einzelparker: € 25.000,00
zusätzlich erworben werden.

Das Projekt
Die Familienwohnbau Niederösterreich hat im Jahr 2003 eine Wohnhausanlage mit insgesamt 89 Wohnungen sowie 1 Geschäftslokal auf Mietbasis mit Kaufoption nach zehn Jahren errichtet.

Das Bauprojekt gliedert sich in mehrere Bauteile. Die Bauteile entlang der Attemsgasse wurden in fünfgeschossiger Bauweise errichtet. Daran schließt sich ein in Reihenhauscharakter geprägter Baustil mit Wohnungen über zwei Ebenen und wohnungsinternen Stiegen.
Nach Ablauf der zehn Jahre und aufgrund eines Rücktritts können wir Ihnen ab sofort eine kompakte 3 Zimmerwohnung anbieten. Die Wohnung wird mittels Fernwärme beheizt..

Kaufnebenkosten
- 3,5% Grunderwerbsteuer
- 1,1% Grundbucheintragung
- 2%  pauschal Vertragserrichtung
- € 600,-- pauschal für die Abfuhr der Grunderwerbsteuer und die Selbstberechnung an das Finanzamt sowie die Unterschriften der Verkäuferin am Kaufvertrag
- sowie div. Barauslagen
Provisionsfrei!

Die Infrastruktur
Die Wohnhausanlage verfügt über eine optimale zentrale Lage und Verkehrsanbindung. In unmittel-barer Nähe befindet sich die Straßenbahnlinie 26 sowie die Autobuslinien 23A und 24A. Das Zentrum Kagran mit U-Bahnanschluss (U1) und Einkaufs-paradies „Donauzentrum“ ist fußläufig erreichbar. Die Wagramer Straße ist mit ihrem geschäftigen Treiben nur eine Station entfernt. Ebenfalls ist es nicht weit zur Veterinärmedizinischen Universität.

Der Bezug
Die Wohnung ist kurzfristig beziehbar.

 

Lagepläne

Plan 0

Fakten

Objektnummer:
3070/13815
Objekttyp:
Wohnung
Wohnfläche:
86,2 m²
Balkon:
1
Terrasse:
1
Terrassenfläche:
16,79 m²
Loggia:
1
Loggiafläche:
5,69 m²
Zimmer:
3
Schlafzimmer:
2
Badezimmer:
1
Toilette:
2
Heizung:
Fernwärme
Stiege:
2
Top-Nummer:
32
Stockwerk:
2
Baujahr:
2003
Neubau:
Ja
Verfügbar ab:
Kurzfristig

Preisdetails

Kaufpreis:
386.000,00 €
Kaufpreis/m²
4.477,96 €
Betriebskosten:
324,74 € inkl. USt.
Provision:
provisionsfrei

Energieeffizienz

Energieausweisart:
Energiebedarfs­ausweis
HWB:
60,2 kWh/(m²*a)
HWB Klasse:
C
fGEE:
1.8
fGEE: Klasse
D

Andrea Kiefmann
FAMILIENWOHNBAU gemeinnützige Bau- und Siedlungsges.m.b.H.
Ihr regionaler Experte.

hauk@familienwohnbau.at
+43 1 / 4034181 - 19

Anfrage
Max. 500 Zeichen
Ich habe die Datenschutzvereinbarung gelesen und verstanden, und ich stimme der Verarbeitung meiner persönlichen Daten wie darin beschrieben zu. *