3 Zimmer Eigentum mit Balkon

Lage: 1220 Wien | Leskygasse 8
IMG_0993
IMG_1015
IMG_1019
IMG_1004
IMG_1007
IMG_1008
IMG_0967
IMG_0974
IMG_0957
IMG_0970
IMG_0987
IMG_0383
20220414_092546
20221109_090130
20220414_092512
IMG_2880
IMG_2884
IMG_2894
IMG_2866
IMG_2871

Beschreibung

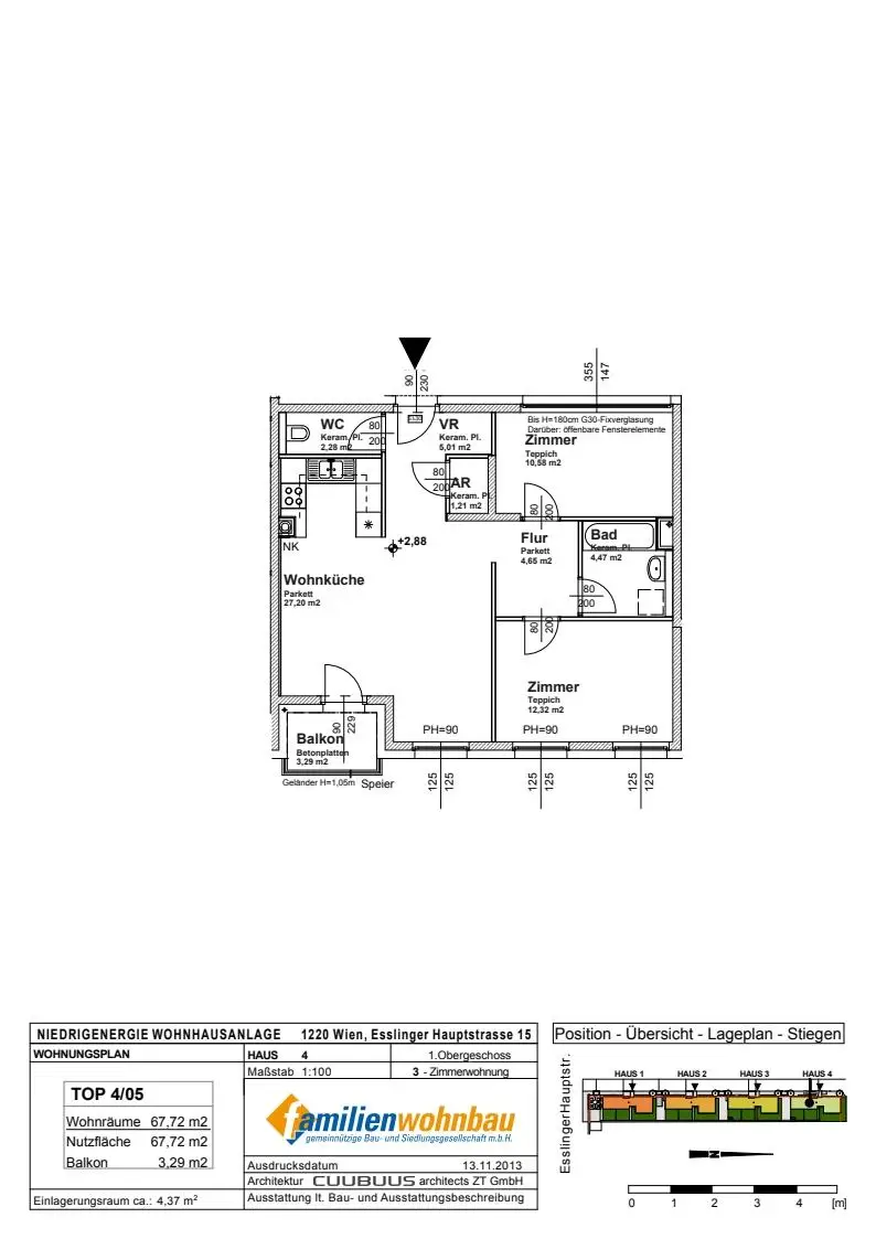
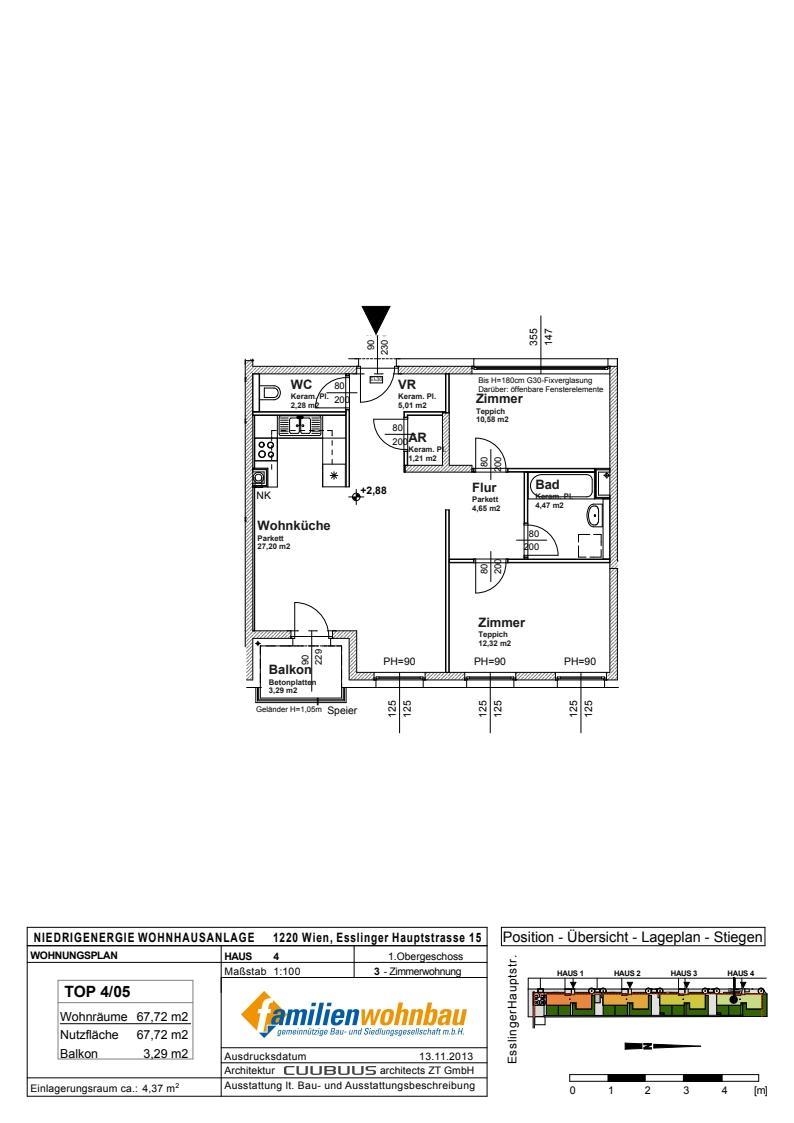
Zum Verkauf gelangt eine freifinanzierte 3 ZIMMER Eigentums-WOHNUNG mit ca. 68 m² zzgl. ca. 3 m² Balkon  im 1. Obergeschoss

RAUMAUFTEILUNG:

  • Vorraum
  • Abstellraum
  • Flur
  • Wohnküche mit Ausgang auf den Balkon
  • zwei Zimmer
  • Bad mit Wanne, Waschbecken und Waschmaschinenanschluss
  • WC

Ein Garagenstellplatz kann ab € 22.000,00 dazu erworben werden.

  Nebenkosten:
- 3,5% Grunderwerbsteuer
- 1,1% Grundbucheintragung
- 2 % pauschal Vertragserrichtung
- € 720,-- pauschal für die Abfuhr der Grunderwerbsteuer und die Selbstberechnung an das Finanzamt sowie die Unterschriften der Verkäuferin am Kaufvertrag
- sowie div. Barauslagen

 

Das Projekt
Die Familienwohnbau hat im Jahr 2009 am Stadtrand von Wien, nahe den Marchfeldgemeinden, eine sympathische Wohnhausanlage mit 42 Wohnungen samt Tiefgarage errichtet. Die Lage – urban und dennoch nahe an der Natur – verspricht Wohlfühlqualität in Wiens größtem Bezirk!

Die Details
Die Wohnanlage besteht aus vier Stiegen mit jeweils zehn Wohnungen, verteilt auf Erdgeschoss, 1. und 2. Obergeschoss sowie ein Dachgeschoss. Jede Wohnung verfügt über ein eigenes Kellerabteil.
Im Erdgeschoss befindet sich ein Kinderwagen- und Fahrradabstellraum. Zusätzlich steht allen Bewohner:innen im Keller ein großzügiger Gemeinschaftsraum zur Verfügung, der mit Fitnessgeräten ausgestattet ist und sich auch ideal für Feiern, z. B. Geburtstage, eignet.
Beheizt wird die Anlage über eine effiziente Gas-Zentralheizung, die für angenehme Wärme in allen Wohnungen sorgt.
Die gesamte Anlage ist barrierefrei konzipiert. Alle Stiegen sind mit einem Lift ausgestattet, der sowohl die Wohnebenen als auch direkt den Keller mit der Tiefgarage verbindet – für maximalen Komfort und uneingeschränkte Mobilität.

Die Infrastruktur
Mit der Autobuslinie 26 A erreicht man bequem das Donau Zentrum in Kagran, von dort gelangt man mit der U1 direkt in die City. Mit den Buslinien 88 A+B kommt man in die Seestadt Aspern mit direktem Anschluss an die U2.

Ein Lebensmittelsupermarkt ist fußläufig in wenigen Minuten zu erreichen

Naturfreunde werden die Nähe zum weitläufigen Nationalpark Donau-Auen mit seinen Wanderwegen sehr zu schätzen wissen.

Ein hervorragend ausgebautes Radwegenetz macht die Donaustadt speziell für Radfahrer zum wahren Paradies. Naturoasen wie die Alte Donau, Donauinsel oder die Lobau haben für jeden etwas zu bieten. Ein beachtliches Angebot an Gastronomie und Freizeiteinrichtungen ermöglichen Urlaubsfeeling pur.

Der Zeitplan
Die Wohnung ist kurzfristig beziehbar.


Bei Interesse senden Sie uns bitte eine Anfrage per E-Mail.

 

 

 

Lagepläne

Plan 0

Fakten

Objektnummer:
3070/13825
Objekttyp:
Wohnung
Wohnfläche:
67,72 m²
Balkon:
1
Balkonfläche:
3,29 m²
Zimmer:
3
Schlafzimmer:
2
Badezimmer:
1
Toilette:
1
Heizung:
Gas
Top-Nummer:
5
Stockwerk:
1
Baujahr:
2009
Neubau:
Ja
Verfügbar ab:
Kurzfristig

Preisdetails

Kaufpreis:
259.000,00 €
Kaufpreis/m²
3.824,57 €
Betriebskosten:
512,02 € inkl. USt.
Preisinfos:
BK inkl. Reparaturrücklage, Verwaltung; Heizung und Warmwasser Akonto
Provision:
provisionsfrei

Energieeffizienz

Energieausweisart:
Energiebedarfs­ausweis
HWB:
49,5 kWh/(m²*a)
HWB Klasse:
B
fGEE:
0.87
fGEE: Klasse
B

Andrea Kiefmann
FAMILIENWOHNBAU gemeinnützige Bau- und Siedlungsges.m.b.H.
Ihr regionaler Experte.

hauk@familienwohnbau.at
+43 1 / 4034181 - 19

Anfrage
Max. 500 Zeichen
Ich habe die Datenschutzvereinbarung gelesen und verstanden, und ich stimme der Verarbeitung meiner persönlichen Daten wie darin beschrieben zu. *